Home
Balkóny
Závesné balkóny
Loggie
Balkónové zábradlia
Balkónové doplnky
Plotové systémy
Lamelové
Pohony
Kovanie
Farebná škála
Galéria
Integrované dvere
Latové
Pohony
Osadenia
Farebná škála
Galéria
Kombinované
Osadenia
Vypaľované
Osadenie
Presklené
Kované
Pergoly a prístrešky
Stavby a výrobky
Komplexné stavebné práce
Materiály
Vzorkovník
Typy výplní
Doplnky
Referencie
Balkóny
Plotové systémy
Pergoly a prístrešky
Kontakt
Na stiahnutie
Home
Balkóny
Plotové systémy
Pergoly a prístrešky
Stavby a výrobky
Referencie
Kontakt
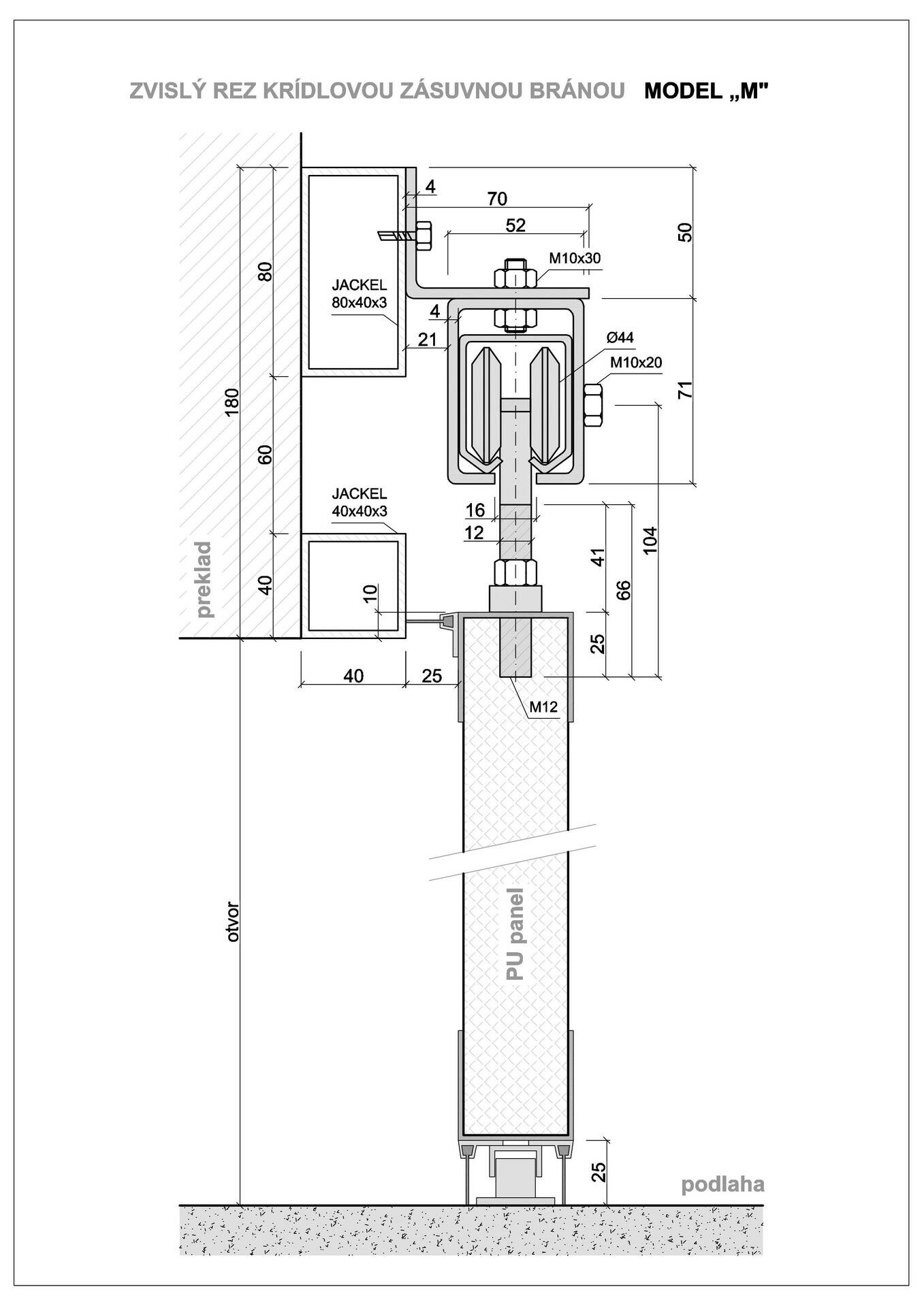
Zásuvné brány - osadenie
Kontaktujte
nás
Oboznámil(a) som sa s podmienkami ochrany osobných údajov a súhlasím so spracovaním údajov uvedených vo formulári
Prosím, vyplňte všetky požadované údaje